+200 boligejere anbefaler Boligtegneren.

Kundecase

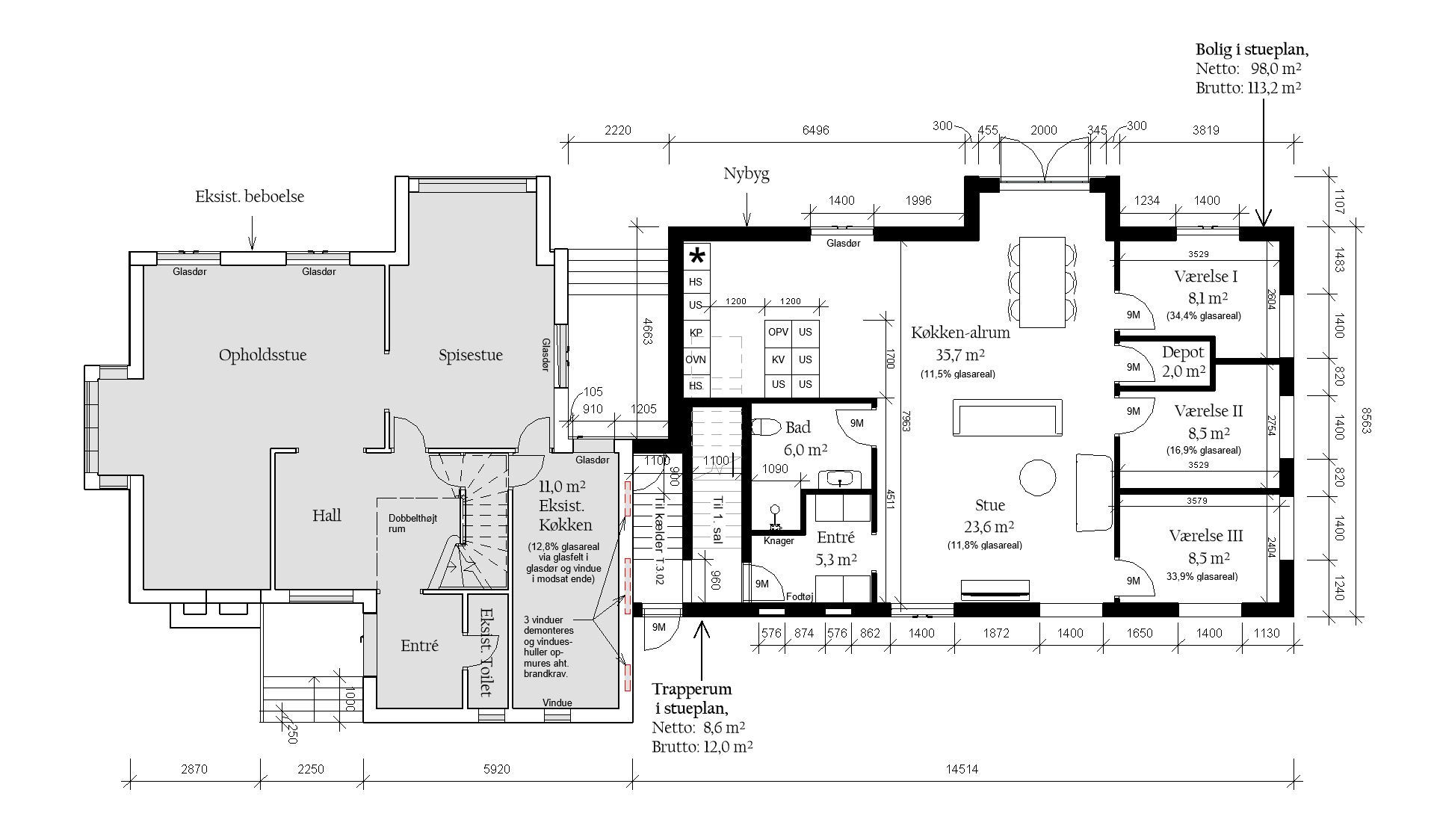
Tilbygning fordoblede boligarealet

Når man har en fantastisk matrikel i Hellerup, så giver det rigtig god mening, at maksimere sine boligkvadratmeter. Kunden havde længe haft det som overvejelse, og betragtede det som en meget fordelagtig investeringscase. Det kan vi i den grad bekræfte, særligt når resultatet er en eksklusiv og velintegreret bygning.

Betydelig boligforøgelse

Fra enfamiliehus til 3 boliger

Når man skal opgradere et enfamiliehus til flere boliger på samme matrikel, så medvirker det en række særlige krav og derved en større kompleksitet. I dette tilfælde skulle den eksisterende bolig renoveres, og tilbygningen skulle udgøre 2 nye boliger; én i stueplan og én på 1.sal. Det medvirker det man kalder “vandret lejlighedsskel”, hvilket sætter helt særlige brandkrav mellem boligenhederne. Heldigvis har vi et fast samarbejde med et dygtigt certificeret ingeniør-team, som kan udføre både brandprojekter og konstruktionsprojekter i klasse BK1-BK4, samt klasse KK1-KK4. En direkte nødvendighed på et projekt som dette.

Arkitektonisk samhørighed

Omfattende krav fra kommunen

Da Niels kontaktede os, havde de allerede været igennem flere forløb med andre rådgivere. Forløb som desværre ikke var gået som planlagt. Derfor var det et lidt vingeskudt projekt vi overtog, hvor man skulle genfinde energien og gnisten til at skabe et nyt projekt som kunne godkendes af kommunen.

Vi indgik fra starten en grundig forhåndsdialog med kommunen, og vi blev ligeså mødt af skarpe holdninger til alt, lige fra placering, højde og arkitektonisk udtryk, til en holdning om, at tegningerne skulle ligne håndskitser fremfor et 3D baseret projekt.

Når man bliver mødt af den slags krav, så er det desværre et vilkår man må acceptere. Vi fik derfor tilpasset projektet og sendte løbende oplæg til kommunens kommentering, men vi udfordrede dem også på deres lidt firkantede holdninger. Alt i alt kom vi i mål med et flot resultat og med en byggetilladelse i hånden.

Tegningsgrundlaget

Fra gamle håndtegninger til 3D

På denne sag var projektgrundlaget på mange måder tilsvarende de fleste andre projekter. Vi dykkede ned i de kommunale arkiver og fandt de gamle håndtegninger; flotte men knap så informative ift. nutidens krav. Derfor 3D modellerer vi altid projekter fra bunden, med udgangspunkt i de eksisterende håndtegninger kombineret med fysiske opmålinger på stedet. Resultatet er et sammenhængende projekt, som minimerer risiko for fejl og som gør det muligt at placeres sig i samtlige rum og få visualiseret rummelighed, indretning, udsyn m.m.

Vi tager ansvar, og det gør en forskel

Kundens oplevelse

Jeg kan meget varmt anbefale Boligtegneren, som håndterede alt ift. vores projekt fra ide til endelig byggegodkendelse.

Boligtegneren overtog vores projekt efter to tidligere afslag på byggeansøgning og de viste sig som den bedst mulige beslutning. Mike er ekstremt behagelig, pålidelig, fair og faglig kompetent. Han tager det ansvar og engagement, som vi ikke havde set fra andre leverandører før ham og han var altafgørende for at vi fik kørt vores projekt i mål. Vi er taknemmelige for, at vi valgte Boligtegneren, som får den absolut bedste anbefaling herfra.

Niels  |  Hellerup

Vi forstår at der er mange ting man som boligejer skal tage stilling til, uanset om det omhandler ombyg, tilbyg eller nybyg. Som boligejer er man ikke nødvendigvis bekendt med processen samt diverse byggetermer, og netop derfor gør vi en dyd ud af, at skabe en jordnær dialog. På forenklet vis formidler vi hvad I skal igennem samt hvilke ting I skal tage stilling til undervejs, naturligvis med vores gode rådgivning fra start til slut.

Byggebranchen og rådgiverbranchen er desværre kendt for mangelfulde leverancer og ansvarsfraskrivelse. Alt for ofte hører vi fra vores kunder, at de har betalt overpris ved en anden rådgiver, som ikke leverede varen, og det er i vores optik helt urimeligt at byde sine kunder dette. Derfor har vi fra start garanteret, at vi sikrer vores kunder et højt serviceniveau, vi tager ansvar for projektet og vi er transparente og hudløs ærlige, fra start til slut.

Arkitektydelser er ofte forbundet med skyhøje priser, og derfor frygter mange familier at de ikke har råd til at hyre en arkitekt. Desværre er det også sandheden mange steder, men netop dét har vi valgt at gøre oprør mod. Vi tilbyder pakkeløsninger til faste priser som alle familier kan være med på, netop for at alle skal kunne opnå deres boligdrøm.

0

Byggegrund med eftertragtet beliggenhed

0

Boligareal (brutto)

0

Sekundære arealer (brutto)

Få hjælp til familiens vigtigste kapitel

Book gratis rådgivningsmøde

Vi omdanner jeres drømme og ønsker til et konkret projekt, og sikrer jer byggetilladelse

Udfyld formularen

Book gratis intromøde

Udfyld formularen og få et gratis og uforpligtende intromøde.
Alle bookinganmodninger besvares indenfor 48 timer.

Foreslå dato og tidspunkt (valgfrit)
Projekttype
Vedhæft håndskitse (valgfrit)

Udfyld formularen

Få et uforpligtende tilbud

Udfyld formularen og få et gratis og uforpligtende tilbud.
Alle henvendelser besvares indenfor 48 timer.

Projekttype
Vedhæft håndskitse (valgfrit)

Tilmeld dig

Bliv ven af Boligtegneren

Udfyld formularen og bliv kontaktet.
Alle henvendelser besvares indenfor 48 timer.