+200 boligejere anbefaler Boligtegneren.

Kundecase

Nyt enfamiliehus til selvbyggerne

Her deler vi et klassisk eksempel på en kundecase, som mange kan relatere til. Det er nemlig blevet mere populært med selvbyg, særligt i blandt håndværkere.
Alexander kommer fra en håndværkerfamilie, og kontaktede os for at få hjælp til at få alle tanker omsat til et projektmateriale, som vi benyttede til at indhente byggetilladelse.

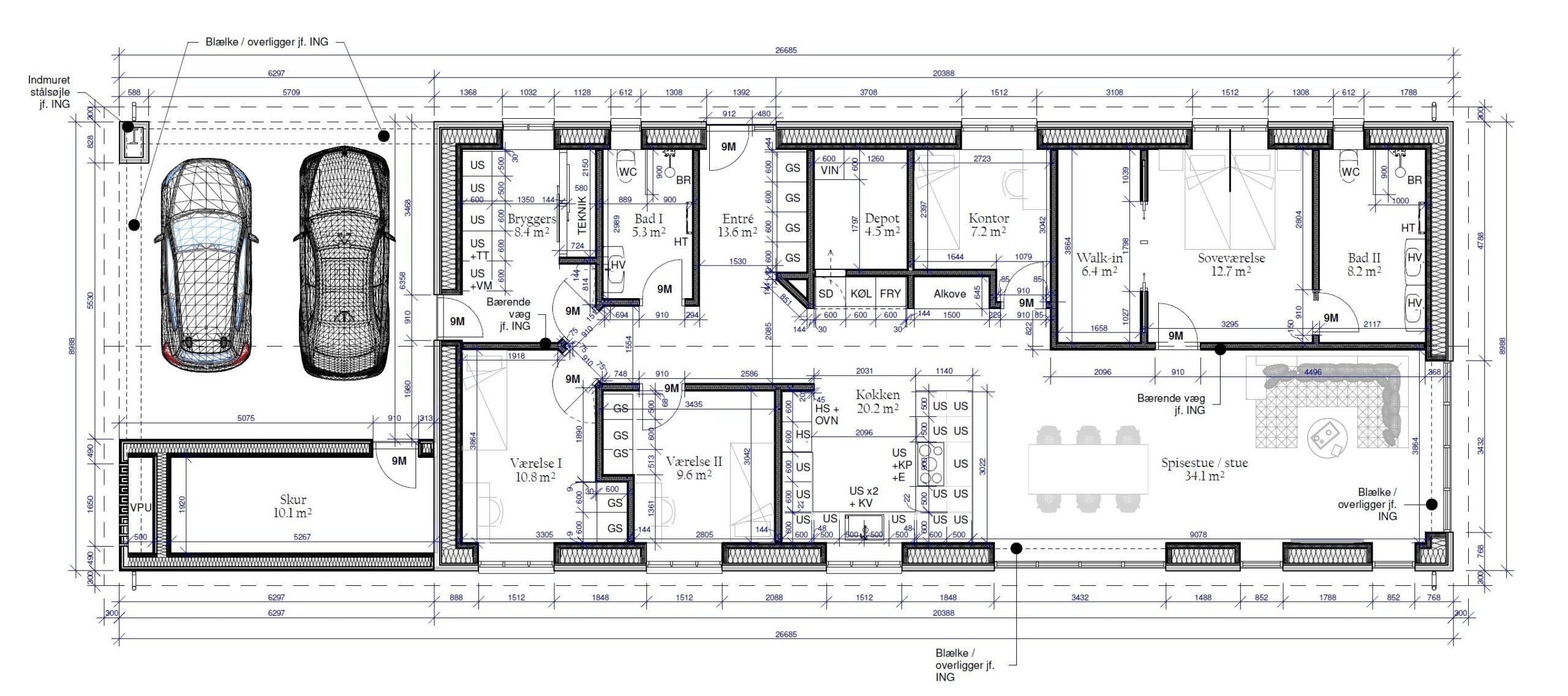
Gennemarbejdet planløsning

En klassisk planløsning til familien

Da Alexander kontaktede os, havde han og familien i forvejen brugt mange timer på at skitsere deres ønskede planløsning. Når man kommer fra en familie med håndværksmæssig baggrund, så er der mange erfaringer og meninger som skal indarbejdes i projektet, hvilket vi hylder og underbygger. 

Vi udførte en grundig analyse af familiens eget planforslag, hvortil vi introducerede adskillige optimeringer og tilføjelser. Bl.a. indførte vi et skjult depot/viktualierum, en integreret alkove og optimerede arealerne for både børneværelser og bryggers. Alle ydre mål tilpassede vi til murmål, så bygningslængder, dør- og vinduesmål stemmer overens med hele antal mursten, hvilket medvirker et billigere, bedre og flottere resultat efter udførsel.

Byggegrund og adgangsforhold

Placering og udformning

Vi startede med en fysisk besigtigelse på den tomme byggegrund, for at opnå en bedre forståelse for grunden og området som helhed. Vi vidste at der skulle etableres en ny indkørsel til grunden, hvilket kræver en såkaldt ansøgning om overkørsel. I den forbindelse var det afgørende at kontrollere om lygtepæle, el-bokse og andet ville skabe udfordringer.

Dertil havde vi en god dialog med Alexander og hans familie, hvor vi kom grundigt omkring placering af varmepumpe, afstande til skel og udnyttelse af baghaven. Når man bygger på en relativt smal byggegrund, så er der visse begrænsninger, men i dette tilfælde har familien heldigvis en nabogrund som ikke bebygges, hvilket får deres baghave til at virke 5x større.

Der forelå også et juridisk dokument angående tværgående offentlige kloakføringer på matriklen. Derfor indgik vi i en forhåndsdialog med kommunen, og fik styr på både det juridiske og det praktiske.

Ansøgninger og dialog med kommunen

Byggetilladelse inden for 1 måned

Når man skal bygge nyt hus, så kræver det naturligvis en byggeansøgning for at opnå byggetilladelse af kommunen. Men vidste du at det ofte også kræver en særlig tilladelse fra kommunens vejmyndighed? Det kan ligeså kræve en landzonetilladelse, nedrivningstilladelse, miljøtilladelse m.m.

På dette projekt udførte vi en grundig byggeansøgning via Byg & Miljø. Vi indplacerede huset i korrekt brandklasse og konstruktionsklasse, og vi udvalgte nøjagtigt de tekniske kapitler i bygningsreglementet, som projektet var omfattet af. Vi vurderede at det gav mening at indgå en forhåndsdialog med kommunen pga. særlige kloakforhold på matriklen, og det viste sig at være en god idé. For på den baggrund kunne vi indsende en meget grundig og målrettet byggeansøgning, og efter kun 1 måned modtog Alexander sin byggetilladelse.

Håndværkernes foretrukne rådgiver

Det gør en kæmpe forskel, at vi taler samme sprog

Vi oplever gang på gang, at når en håndværkerfamilie skal bygge eget hus, så værdsætter de at vi også har erfaring fra byggepladsen. Vi har fra tidligere mange års erfaring fra et af de største entreprenørfirmaer i Danmark. Det betyder meget at vi også har prøvet rollen som byggeleder i flere år, da det har givet os praktisk erfaring fra processen på en byggeplads.

Omvendt værdsætter vi også, at vores kunde ved hvad de vil have, samt hvordan de vil udføre det. Det letter vores arbejdsproces betydeligt, og derfor kan vi typisk også indregne lidt rabat i et sådant projektforløb.

På dette projekt havde vi en god sparring med familien, og fik i fællesskab vedtaget- og indarbejdet optimerede løsninger til fundamenter, terrændæk og tagkonstruktionen. Et glimrende eksempel på hvordan et tværfagligt samarbejde kan løfte projekter til nye højder.

Et vigtigt fokus i projektet har været, at nedbringe gangareal mest muligt. I den proces var det vigtigt at sikre, at entré, køkken og værelser kan betragtes som særskilte zoner i boligen. Gangarealet er derfor integreret som en naturlig opdeling i køkkenet, så højskabssektion, alkove og viktualierum blev adskilt fra resten af køkkenet. Nogle ville måske opleve at arbejdstrekanten i køkkenet blev for distanceret, men for Alexander og familien var der netop behov for dette, hvorved det er et klassisk eksempel på at vi alle er forskellige.

 Når man som ungt par skal have bygget sit første hus, så spiller prisen en afgørende rolle. Derfor er huset udformet som et længehus uden forskydninger i murværk og tag, for at holde det så simpelt som muligt, og derved undgå besværlige samlinger. Ikke alle huse behøver være arkitektoniske mesterværker, til trods for at vi har kollegaer i arkitektbranchen som er uenige. Vi mener at en bolig skal tage udgangspunkt i beboernes drømme og ønsker, forud for trends og arkitekters signaturer. Derfor er dette projekt opbygget på et forenklet arkitektonisk grundlag, hvor der i stedet har været særlig fokus på at indarbejde gode og slidstærke materialer.

Det er de færreste som synes om varmepumpers udseende. Vi er enige. Kønne er de ikke, så kan man gemme dem af vejen, uden at forhindre deres effektivitet, så er det at foretrække. For dette projekt opvarmes boligen med en luft-til-vand varmepumpe, som vi har valgt at indbygge og skjule i skurets gavl. Foran varmepumpen monteres lodret sortmalet listedækning, som både skjuler varmepumpen og samtidigt skaber et spil i facaden. Når man placerer udedelen til sin varmepumpe, så bør man både være opmærksom på lydgener mod nabo samt ved eget terrasseområde. Derudover bør man sikre sig, at varmepumpen er hævet over jorden (fx på betonfliser) samt at den ikke er placeret for langt væk fra indedelen.

0

Tom bygggrund i skønne omgivelser

0

Boligareal (brutto)

0

Sekundære arealer (brutto)

Få hjælp til familiens vigtigste kapitel

Book gratis rådgivningsmøde

Vi omdanner jeres drømme og ønsker til et konkret projekt, og sikrer jer byggetilladelse

Udfyld formularen

Book gratis intromøde

Udfyld formularen og få et gratis og uforpligtende intromøde.
Alle bookinganmodninger besvares indenfor 48 timer.

Foreslå dato og tidspunkt (valgfrit)
Projekttype
Vedhæft håndskitse (valgfrit)

Udfyld formularen

Få et uforpligtende tilbud

Udfyld formularen og få et gratis og uforpligtende tilbud.
Alle henvendelser besvares indenfor 48 timer.

Projekttype
Vedhæft håndskitse (valgfrit)

Tilmeld dig

Bliv ven af Boligtegneren

Udfyld formularen og bliv kontaktet.
Alle henvendelser besvares indenfor 48 timer.